- BUILDING PLOT WITH FULL PLANNING PERMISSION FOR A 2 BEDROOM HOUSE
- SOUTH FACING REAR GARDEN
Charles Wycherley Independent Estate Agents are delighted to offer this building plot, which benefits from full planning permission for a new dwelling adjoining the existing no.18 Anchor Field to the west of the house.
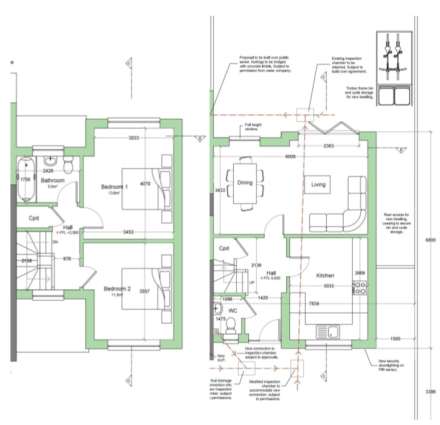
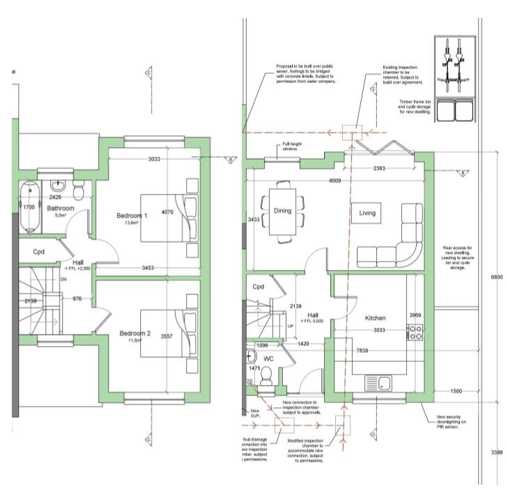
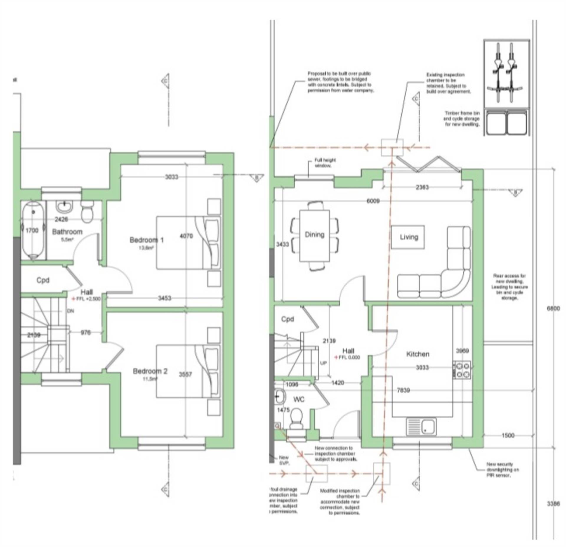
The proposed new house would be an end-of-terrace property comprising two double bedrooms, with a front aspect from the second bedroom overlooking Anchor Field and a southern aspect from the main bedroom, which is positioned adjacent to the new bathroom. On the ground floor, the accommodation would include an entrance hall with a downstairs cloakroom, a front kitchen and a full-width 19'7" rear sitting room opening onto the south-facing rear garden, together with a front garden facing Anchor Field.
Anchor Field is in an ideal central village location, just a short walk from the doctors surgery, pharmacy and an excellent shopping parade. The village green is just beyond the shops, with the parish church, village hall and one of the village's three pubs, The Anchor Inn, surrounding. The property is also very close to the primary and secondary schools and within easy reach of a bus stop with regular services to Lewes and Eastbourne. Lewes is just 3 miles distant, with it's excellent range of shopping facilities including 3 superstores, many independent shops, cafes, pubs and restaurants, along with the mainline Railway Station (London Victoria 65 mins, London Bridge 70 mins & Brighton 20 mins), adjacent to the Depot Cinema.
PROPOSED ACCOMMODATION
FIRST FLOOR
LANDING with stairs to ground floor.
BEDROOM 1 (DOUBLE) 13'4 x 11'3.
Fitted double wardrobe cupboard. Double glazed widow to Anchor Field. Radiator.
BEDROOM 2 (DOUBLE) 11'6 x 11'3.
Fitted double wardrobe cupboard. Double glazed widow to rear garden and the south. Radiator.
BATHROOM 7'9 x 5'6.
Panelled bath, pedestal wash basin and low level W.C.
GROUND FLOOR
ENTRANCE HALL from the front garden of Anchor Field. Fitted understairs cupboard.
CLOAKROOM
Low level w.c. and wash basin.
SITTING ROOM/FAMILY/DINING AREA 19'7 x 11'3 overall.
Sitting room area: 13' x 11'3
Double glazed window to Anchor Field, radiator and double door to:-
Family/dining room area: 11'3 x 9'8
Bifold doors to rear garden. Radiator.
FITTED KITCHEN 13' x 9'8
Sink unit, electric hob & oven, dishwasher, fitted extractor fan. Worktops with cupboards and drawers.
OUTSIDE
GARDENS
There is a front area of garden with side walkway to a good sized south facing rear garden.
Business Rates
Lewes District Council, To Be Confirmed
Notice
Please note we have not tested any apparatus, fixtures, fittings, or services. Interested parties must undertake their own investigation into the working order of these items. All measurements are approximate and photographs provided for guidance only.
/// scorecard.presuming.resolves is the what3words address for the best entrance. what3words has given every 3 metre square in the world a unique combination of 3 random words.
| Utility |
Supply Type |
| Electric |
Unknown |
| Gas |
Unknown |
| Water |
Unknown |
| Sewerage |
Unknown |
| Broadband |
Unknown |
| Telephone |
Unknown |
| Other Items |
Description |
| Heating |
Gas Central Heating |
| Garden/Outside Space |
Yes |
| Parking |
No |
| Garage |
No |
| Broadband Coverage |
Highest Available Download Speed |
Highest Available Upload Speed |
| Standard |
17 Mbps |
1 Mbps |
| Superfast |
80 Mbps |
20 Mbps |
| Ultrafast |
1000 Mbps |
1000 Mbps |
| Mobile Coverage |
Indoor Voice |
Indoor Data |
Outdoor Voice |
Outdoor Data |
| EE |
Likely |
Likely |
Enhanced |
Enhanced |
| Three |
Likely |
Likely |
Enhanced |
Enhanced |
| O2 |
Enhanced |
Likely |
Enhanced |
Enhanced |
| Vodafone |
Likely |
Likely |
Enhanced |
Enhanced |
Broadband and Mobile coverage information supplied by Ofcom.