Charles Wycherley Independent Estate Agents are delighted to offer this unique period property to the market originally the Co-Op Dairy, later home to the renowned Wallis & Wallis Arms, Armour and Toy Auction House.
This remarkable building combines period charm with outstanding development potential, featuring two galleried showrooms with feature staircases, offices with vaulted ceilings, attractive bay windows, and a distinctive clock tower.
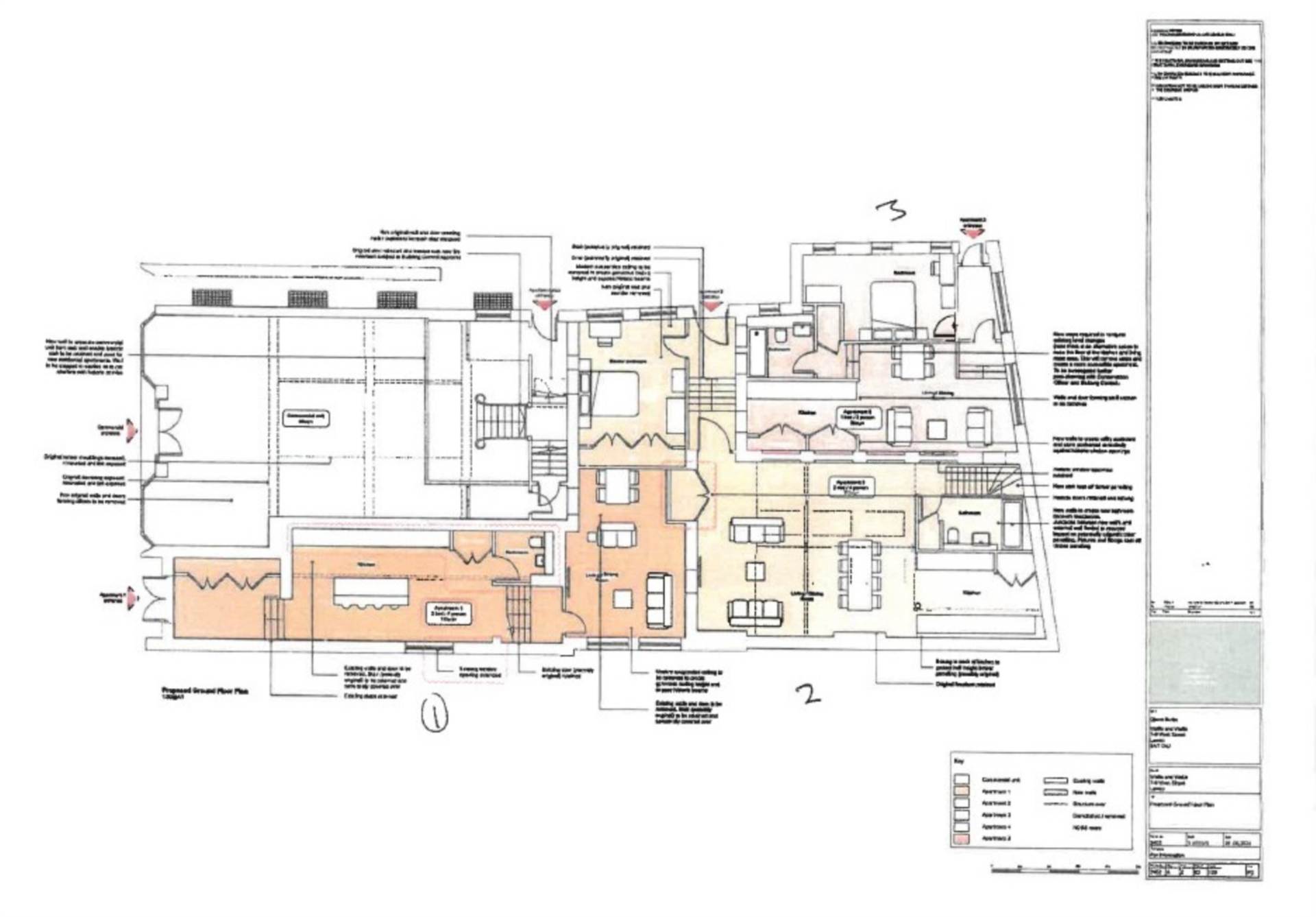
Planning & Development Potential
Current Commercial Permission:
Ground Floor Retail Unit: Approx. 645 sq ft
Lower Ground Accommodation: Approx. 1,160 sq ft Excellent position opposite a public car park, ideal for retail or gallery use.
Residential Development Permission: Full planning permission has been granted for five apartments (one affordable unit), each of unique design and character.
Total development: six units
Parking: Four allocated spaces with four additional tandem spaces
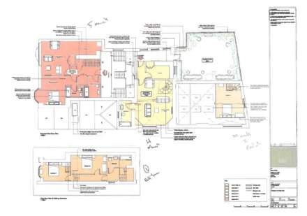
Communal Features: Provision for large sedum/grass roof terrace
Location
The West Street Auction House occupies an attractive position within Lewes town centre's one-way system, opposite The Needlemakers and its car park.
Just 100 yards from the historic High Street, the property sits among Lewes' many period landmarks, including the Norman Castle to the west.
Lewes Railway Station: 5-minute walk services to;
London Victoria & London Bridge: approx. 70 minutes
Brighton: every 20 minutes
Close to the Pells area with riverside walks and the open-air swimming pool
Waitrose and other major stores are within easy reach
Commercial Unit
Retail Space: 645 sq ft Attractive West Street frontage overlooking The Needlemakers car park.
Lower Ground Floor: 1,160 sq ft Direct access from retail space; ideal for additional display, storage, or office use.
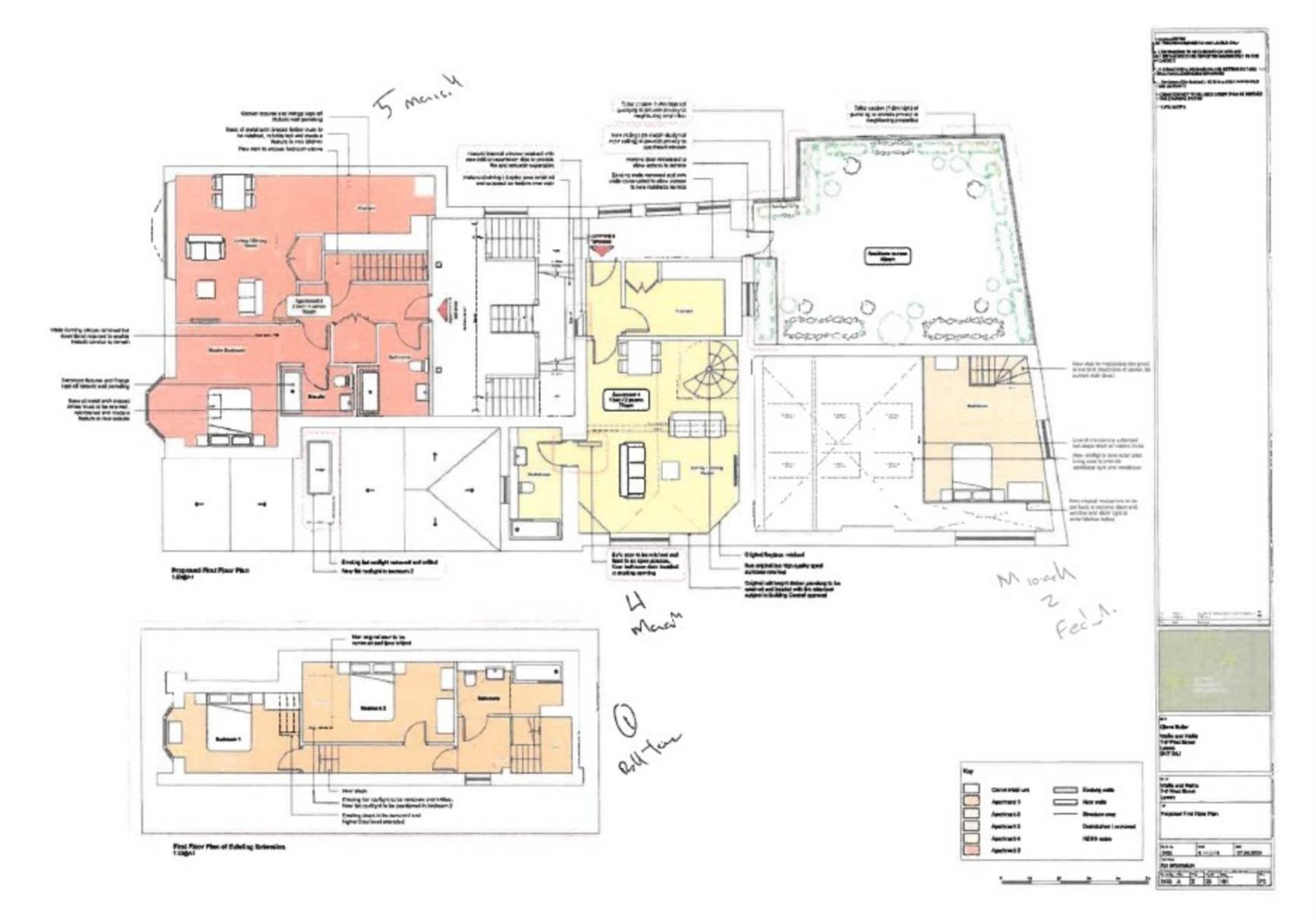
Proposed Apartments
Apartment 1 1,185 sq ft
Private entrance from West Street.
Ground Floor: Entrance hall, open-plan living room/kitchen, bathroom, large sitting room
First Floor: Double landing, two double bedrooms, and separate access to second bathroom
Apartment 2 Largest Unit 1,216 sq ft
Private entrance from Edward Street.
Ground Floor: Double bedroom, large open-plan reception/kitchen area, bathroom
First Floor: Private staircase to double bedroom with attractive architectural features
Apartment 3 592 sq ft (Affordable Unit)
Private entrance.
Entrance lobby, bathroom, bedroom, and open-plan sitting room/kitchen with storage
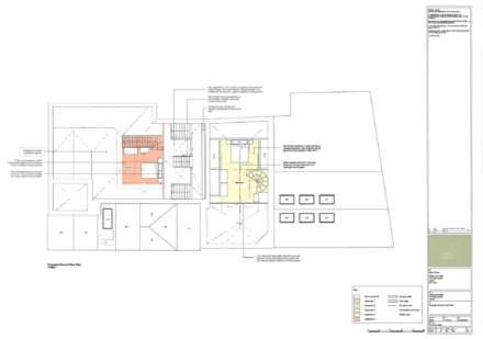
Apartment 4 828 sq ft
Access via shared passageway between West Street and Edward Street.
First Floor: Separate kitchen, good-sized sitting room, bathroom
Second Floor: Bedroom with Velux roof lights and attractive sloping ceilings
Apartment 5 968 sq ft (Maisonette)
Accessed from shared main stairway and landing.
Entrance hall, shower room, family bathroom
Large open-plan sitting room/kitchen with bay window overlooking West Street
Second Floor: Double bedroom
Parking & External Features
Four tandem parking bays approached from Edward Street
Communal sedum roof terrace
Council Tax
Lewes District Council, To Be Confirmed
Notice
Please note we have not tested any apparatus, fixtures, fittings, or services. Interested parties must undertake their own investigation into the working order of these items. All measurements are approximate and photographs provided for guidance only.
| Utility |
Supply Type |
| Electric |
Mains Supply |
| Gas |
Mains Supply |
| Water |
Mains Supply |
| Sewerage |
Mains Supply |
| Broadband |
Unknown |
| Telephone |
Unknown |
| Other Items |
Description |
| Heating |
Gas Central Heating |
| Garden/Outside Space |
Yes |
| Parking |
Yes |
| Garage |
No |
| Broadband Coverage |
Highest Available Download Speed |
Highest Available Upload Speed |
| Standard |
20 Mbps |
1 Mbps |
| Superfast |
80 Mbps |
20 Mbps |
| Ultrafast |
Not Available |
Not Available |
| Mobile Coverage |
Indoor Voice |
Indoor Data |
Outdoor Voice |
Outdoor Data |
| EE |
Likely |
Likely |
Enhanced |
Enhanced |
| Three |
Likely |
Likely |
Enhanced |
Enhanced |
| O2 |
Enhanced |
Likely |
Enhanced |
Enhanced |
| Vodafone |
Likely |
Likely |
Enhanced |
Enhanced |
Broadband and Mobile coverage information supplied by Ofcom.